„Lugao“ gaminamas GW13 serijos transformatoriaus neutralaus taško tarpo įžeminimo apsaugos įrenginys skirtas apsaugoti transformatoriaus nulinio taško izoliaciją nuo žaibo viršįtampių, perjungimo viršįtampių ir galios dažnio (pereinamojo) viršįtampių. Lugao turi profesionalią gamybos įrangą ir didelę eksporto patirtį, o turimas atsargas galima greitai pristatyti.
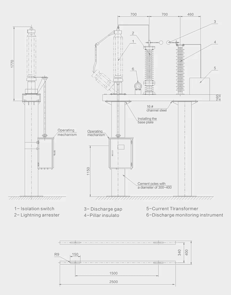
„Lugao“ GW13 serijos transformatorių neutralaus taško viršįtampio apsaugos priemonės pirmiausia naudojamos 110 kV ir 220 kV galios transformatorių neutralaus taško grandinėse. Jie apsaugo transformatoriaus neutralaus taško izoliaciją nuo viršįtampio pažeidimų ir leidžia transformatoriui perjungti įžeminto ir neįžeminto neutralaus taško darbo režimus. Kai reikia vienu metu apsaugoti nuo žaibo, maitinimo dažnio ir perjungimo viršįtampių, apsaugai galima lygiagrečiai prijungti tarpą ir iškroviklį. GW13 serijos neutralaus taško viršįtampio apsauga yra pilnas komplektas, kuriame yra atjungiklis, cinko oksido ribotuvas, iškrovos tarpas ir srovės transformatorius. Jis pasižymi dideliu šiluminiu pajėgumu ir puikia apsauga, lanksčia konfigūracija ir paprastu naudojimu. Galima pasirinkti gryno tarpo dizainą arba atjungiklio ir išleidimo tarpo derinį, kad atitiktų vartotojo poreikius.
GW13 apsaugos įrenginio techninės specifikacijos
| lt |
Vienetas |
Argumentas |
||
| Gaminio modelis |
|
Lugao-gw13-110 |
Lugao-gw13-220 |
|
| Nominali įtampa |
KV |
110 | 220 | |
| Transformatoriaus neutralioji įtampa |
Žaibo pilnas ir pjūvis atsparus įtampa (pikiausia) |
KV |
250 | 400 |
| 1 min. maitinimo dažnis (efektyvioji vertė) |
KV |
95 | 200 | |
| Neutralus izoliacinis jungiklis |
Nominali srovė |
A | 630 | 630 |
| Veikimo mechanizmas |
|
CS14G (rankinis) arba CJ2 (elektrinis) |
||
| Cinko oksido ribotuvas |
Nominali įtampa (RMS) |
KV |
72 | 144 |
| Nepertraukiamo veikimo įtampa |
KV |
58 | 116 | |
| Nuolatinė 1 mA etaloninė įtampa |
KV |
103 | 205 | |
| Žaibo impulsinės srovės liekamoji įtampa |
KV |
186 | 320 | |
| Iškrovimo tarpas |
Tarpo elektrodo atstumo diapazonas |
mm | 90-150 | 220-320 |
| Maitinimo dažnio iškrovos įtampos diapazonas |
KV |
50-83 | 100-166 | |
| 1,2/50us impulsinio išlydžio įtampa |
KV |
120-190 | 250-320 | |
| Srovės transformatorius |
Tipas |
|
Pilta epoksidinė derva, pilnai uždaras 10kv tipo stulpas |
|
| Transformacijos santykis |
|
100/5200/5300/5.40015.50015.600/5 |
||
